Wkład kominkowy UNIFLAM 860 EVO
Opis
Piec kominkowy powietrzny
UNIFLAM 860 EVO
o mocy nominalnej 14 kW
Stalowy wkład kominkowy z szamotem
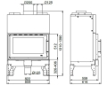
- moc nominalna: 14 kW
- sprawność: 82%
- średnia emisja tlenku węgla (CO): <0,1%
- średnia temperatura spalin: 280 °C
- max. długość polan drewna: 55 cm
- średnica wylotu spalin: 200 mm
- doprowadzenie powietrza: Ø125 mm
- dystrybutor gorącego powietrza: 6 x Ø125 mm
- waga: 256 kg
- palenisko wyłożone szamotem Rath
- wkład idealny do domów z rekuperacją i DGP
- doprowadzenie powietrza do spalania bezpośrednio z zewnątrz
- regulacja dopływu powietrza do wkładu
- czarne zdobienie szyby
- dystybutor gorącego powietrza z 6 wylotami
- nawiew powietrza na szybę
- uszczelka drzwi z pamięcią kształtu
- deflektory wermikulitowe
- stalowe wymienniki
- ogranicznik drewna
- popielnik
- ruszt
- regulowane nóżki
- paliwo opałowe: drewno
- 5 lat gwarancji
- certyfikat CE
- zgodność z normą EN 13229
- zgodność z normą BImSchV
- kraj produkcji: Polska
Zalety wkładu kominkowego UNIFLAM EVO
Konstrukcja wkładu
Wkład wyprodukowany został z wysokiej jakości materiałów – stali, żeliwa oraz szamotu. Komora paleniska wyłożona szamotem, specjalny system wymienników oraz deflektorów zapewniają wysoką sprawność urządzenia. Wkład posiada regulowane nóżki ułatwiające montaż.
Wkład idealny do domów z DGP i rekuperacją
Wkład Unifam Evo przystosowany jest do domów energooszczędnych, wyposażonych w wentylację z odzyskiem ciepła. Blaszany dystrybutor gorącego powietrza ułatwia przyłączenie wkładu do systemu kanałów rozprowadzających ciepłe powietrze. Wkład pozwala na sprawne i oszczędne ogrzewanie domu.
Doprowadzenie powietrza z zewnątrz
Wkład wyposażony jest w doprowadzenie powietrza bezpośrednio z zewnątrz. Krócieć wlotu powietrza średnicy 125 znajduje się pod paleniskiem. Ilość powietrza dostarczanego do procesu spalania regulowana jest za pomocą gałki znajdującej się w dolnej części fasady. Powietrze pobierane jest bezpośrednio z wlotu powietrza i dostarczane pod ruszt oraz na szybę, tworząc kurtynę powietrzną zapobiegająca nadmiernemu brudzeniu się szyby.
Łatwa eksploatacja
Pojemny popielnik, żeliwny ruszt oraz sprawnie działający system nadmuchu powietrza na szybę sprawiają że eksploatacja i konserwacja kominka są łatwe i nie zajmują dużo czasu.
Szeroki widok palącego się drewna
Nowoczesna, stalowa fasada oraz duża szyba z czarnym zdobieniem zapewniają idealną wizję ognia. Klamka oraz uchwyt regulacji powietrza wykonane ze stali nierdzewnej uzupełniają całość tworząc nowoczesną stylistykę paleniska Uniflam Evo.
| moc nominalna: | 14 kW |
|---|---|
| sprawność: | 82% |
| średnia temperatura spalin: | 280 °C |
| max. długość polan drewna: | 55 cm |
| wyloty gorącego powietrza: | 6 x Ø125 mm |
| średnica wylotu spalin: | 200 mm |
| waga: | 256 kg |
| kraj produkcji: | Polska |
PRODUKT EKOLOGICZNY
SPEŁNIA WYMOGI EKOPROJEKTU!

NA WSZYSTKIE PYTANIA ODPOWIEMY
POD NUMEREM TELEFONU
515 198 933
Opinie o produkcie (0)
Producenci